EL PINAR

Un proyecto desarrollado para una familia joven, que priorizó rapidez de montaje, terminaciones cuidadas y una vivienda lista para vivir.

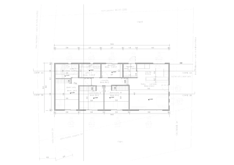
Plano de 105 m² distribuidos en 3 dormitorios, estudio, 2 baños, lavadero y cocina integrada.

SOBRE EL PROYECTO

Ubicada en El Pinar, esta casa fue pensada para una familia joven que eligió la costa como lugar para echar raíces y construir su hogar.

Luego de visitar algunas de nuestras obras, Mica y Gonza se decidieron por este sistema constructivo por dos razones claras: la velocidad de montaje y la calidad de las terminaciones. Desde el inicio, el proyecto se abordó con una planificación clara, buscando dar respuesta a sus necesidades actuales y acompañar su forma de vivir.

El resultado es una vivienda funcional, cómoda y bien resuelta, diseñada para el día a día y pensada para crecer junto a quienes la habitan.

Una obra que pudo ser habitada en solo dos meses, pensada para una familia joven que eligió la costa para echar raíces.

Tras visitar algunas de nuestras obras, se decidieron por este sistema constructivo por la velocidad de montaje y la calidad de las terminaciones.

El diseño lineal reúne todo lo necesario para una vida cómoda y funcional. La cocina fue diseñada a medida y los dos baños fueron completamente personalizados por sus dueños, incorporando decisiones que reflejan su estilo y forma de habitar el espacio.

DESAFÍO

Resolver una vivienda familiar de 105 m² que combine funcionalidad, confort y rapidez de ejecución fue el principal desafío de este proyecto. La planificación y el sistema constructivo elegido permitieron alcanzar un resultado sólido, bien terminado y listo para ser habitado en tiempos eficientes.

OTROS PROYECTOS

Explorá nuestras obras, donde la estética y funcionalidad se fusionan.

EL PRIMER PASO PARA TU HOGAR COMIENZA AQUÍ

Estamos listos para escuchar tus ideas, resolver tus dudas y acompañarte en el camino hacia tu hogar ideal.